Если цена в объявлении изменится, мы сразу сообщим вам об этом на электронную почту.
Нажимая «Подписаться», вы соглашаетесь с правилами.
продам офисное помещение, Абеля, 4179 000 000 ₽
21 фев
Дата публикации объявления
Обн. 3 апр
Дата обновления объявления
46 310 ₽/м²
Параметры
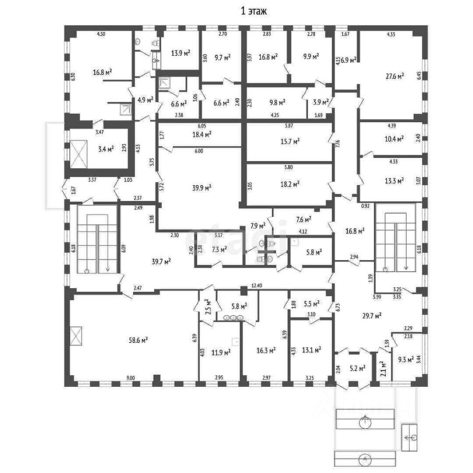
Общая площадь1705,9 м2
Этаж1
Гостиница ресторан и многое другое по вашему желанию! Предлагается к продаже отдельно стоящее здание по адресу Абеля д. 41. Здание 3-х этажное, общей площадью 1 705,9 кв.м. земельный участок 1 985 кв.м. все в собственности. Продажа от физ.лица. В настоящее время в здании расположены: 1-й этаж, площадь 543,6 кв.м. Цирковая школа, занимает часть здания и пристройку сделан ремонт, остальные помещения свободны, можно использовать под любой вид деятельности (ремонта нет, используется как мастерская) 2-й этаж, площадь 576,5 кв.м. Действующая гостиница и хостел, классификация 2 звезды, сделан свежий ремонт!!! 3-й этаж, площадь 585,8 кв.м. Действующий ресторан (бар), банкетный зал, ВИП комнаты для небольших компаний.
Гостиница ресторан и многое другое по вашему желанию! Предлагается к продаже отдельно стоящее здание по адресу Абеля д. 41. Здание 3-х этажное, общей площадью 1 705,9 кв.м. земельный участок 1 985 кв.м. все в собственности. Продажа от физ.лица. В настоящее время в здании расположены: 1-й этаж, площадь 543,6 кв.м. Цирковая школа, занимает часть здания и пристройку сделан ремонт, остальные помещения свободны, можно использовать под любой вид деятельности (ремонта нет, используется как мастерская) 2-й этаж, площадь 576,5 кв.м. Действующая гостиница и хостел, классификация 2 звезды, сделан свежий ремонт!!! 3-й этаж, площадь 585,8 кв.м. Действующий ресторан (бар), банкетный зал, ВИП комнаты для небольших компаний. К зданию пристроены дополнительные площади, используются как складские. Так же имеется технический этаж на крыше здания. Площадка возле здания облагорожена, много парковочных мест. Из окон открывается шикарный вид на Авачинскую бухту! Готовы рассмотреть Ваши предложения, звоните обсудим! Показ в любое время.