В избранном
В избранное
Пожаловаться
Напечатать
Следить за ценой

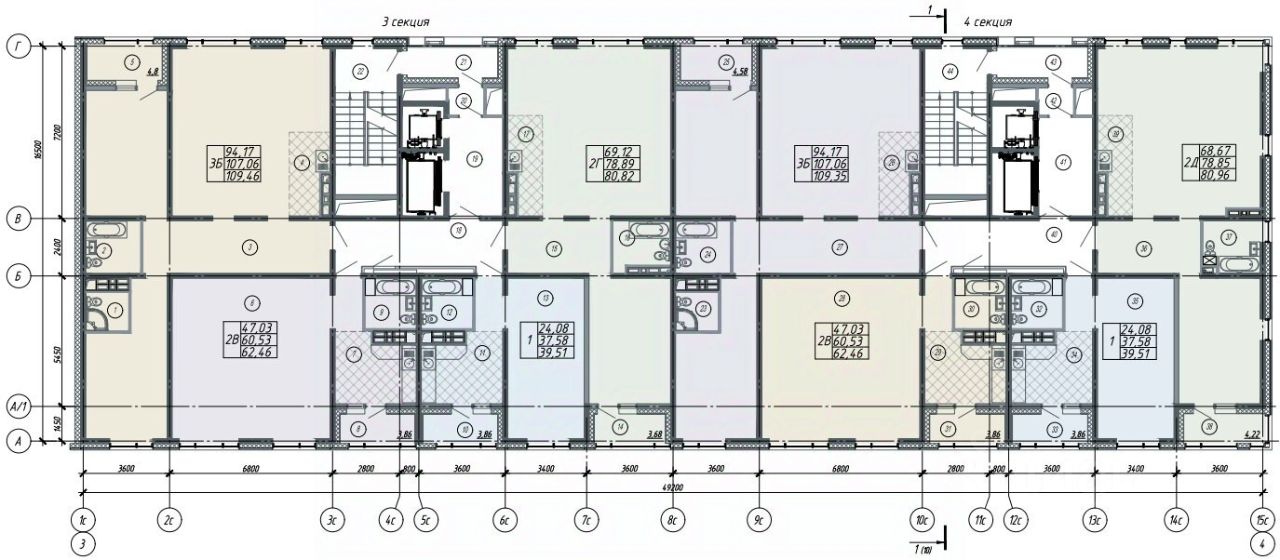
продам 2-к квартира12 179 700 ₽

15 окт
Обн. 11 мая
2
195 000 ₽/м²
  • Чистая продажа