В избранном
В избранное
Пожаловаться
Напечатать
Следить за ценой

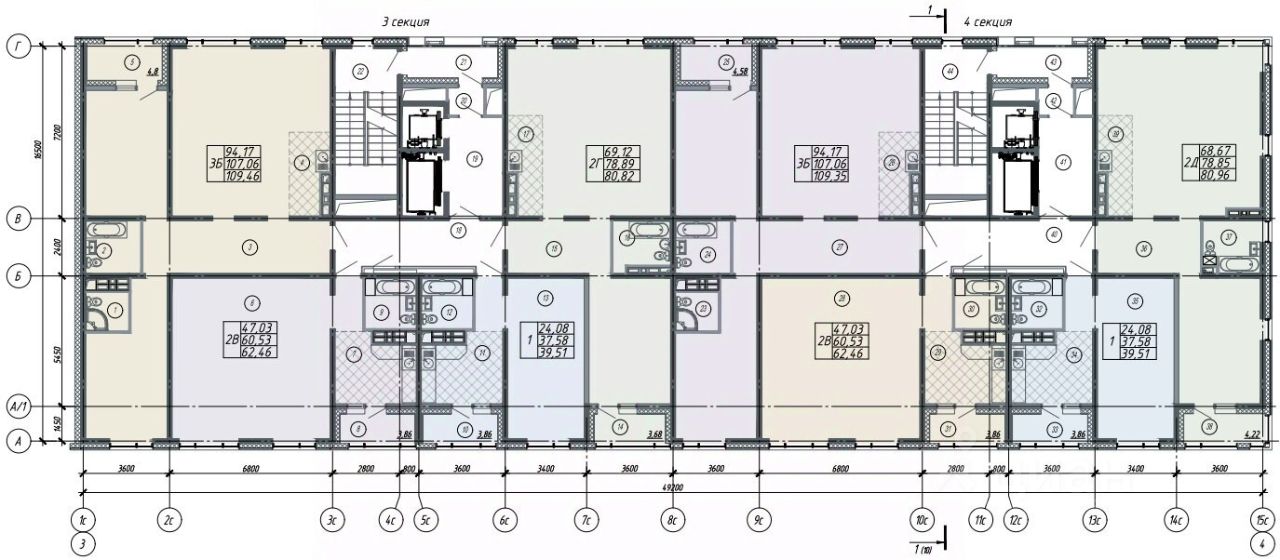
продам 1-к квартира8 692 200 ₽

15 окт
Обн. 11 мая
2
220 000 ₽/м²
  • Чистая продажа