В избранном
В избранное
Пожаловаться
Напечатать
Следить за ценой

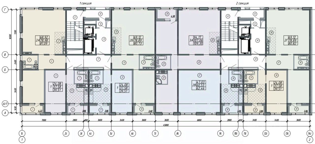
продам 3-к квартира19 136 250 ₽

15 окт
Обн. 11 мая
3
175 000 ₽/м²
  • Чистая продажа