В избранном
В избранное
Пожаловаться
Напечатать
Следить за ценой

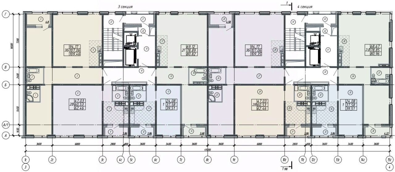
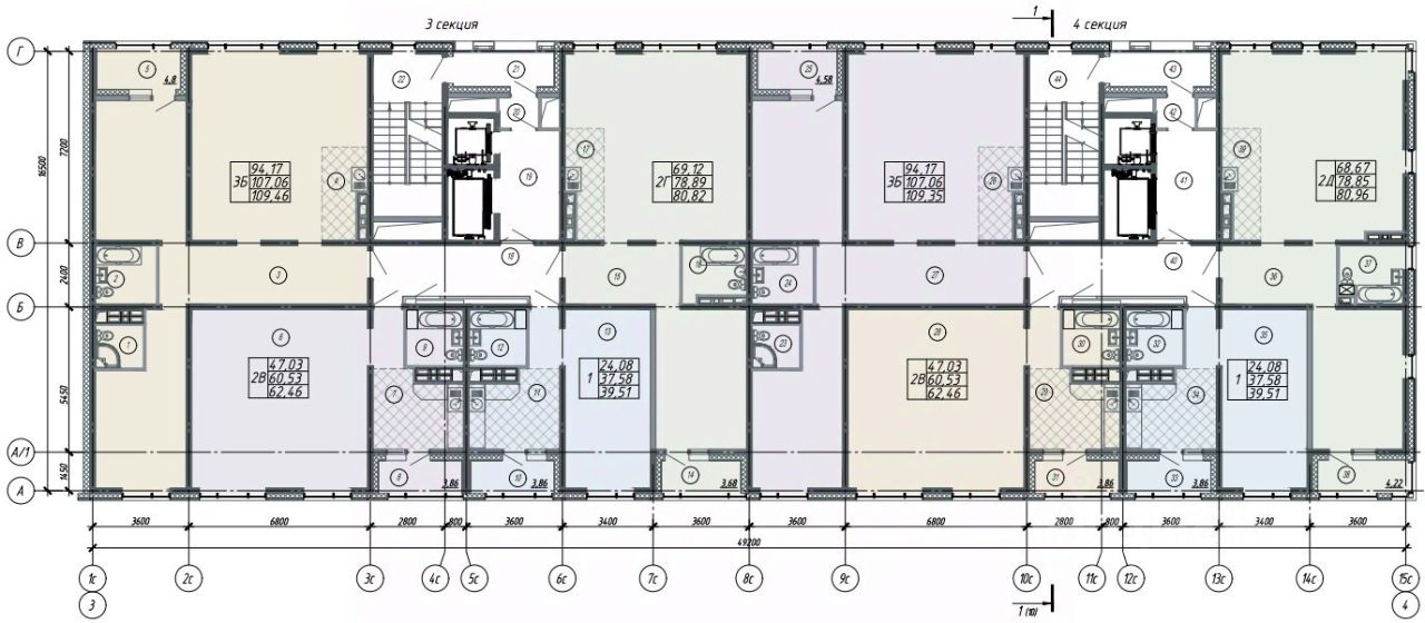
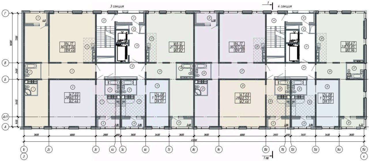
продам 3-к квартира13 763 200 ₽

15 окт
Обн. 11 мая
1
170 000 ₽/м²
  • Чистая продажа